在制造业生产环节,设计人员则需将三维模型中的 BOM 导出用于对接采购和生产,对于外购件/参考件/标准件则在 BOM 中不需显示,以往都是设计人员将 BOM 导出为 Excel 后在 Excel 中编辑并去除掉这些外购件/参考件/标准件,还要对表格重新排序。
以往都是这样来作业的,但由于生产需要,渐渐的 Excel 并不适用于生产车间,对于车间而言则需要设计人员在工程图图纸中去体现符合要求的 BOM ,此时就需要多种 BOM 并存在图纸中。例如在装配体工程图中要体现自制件的 BOM,需要一个隐藏所有外购件/参考件/标准件的 BOM 清单!并且图纸图形表达(视图)上要显示这些外购件/参考件/标准件!
这是正常的作业需求,往常需要在 PLM 等管理系统中去控制,随着信息化要求越来越高,现在需要在图纸中体现。
方法一:对于设计人员而言,在 SOLIDWORKS 的 BOM 中去手动隐藏单个 BOM 行就成了最直接的解决方案,但是这样做不但效率低,易遗漏,BOM 列多了简直是折磨!

方法二:采用装配体多配置;专门为出图建配置(如一个“显示所有”,一个“隐藏外购件”),然后在 BOM 中选配置。繁琐、占内存、管理复杂,对性能有影响!



方法三:设置零部件“不包含在BOM中”属性;出图时省事了,但后期修改时难以找回这些零件(在模型树中也很可能被过滤掉),易导致设计错误!

方法四:另存装配体/工程图;额外另存一套不含外购件的图档用于 BOM 统计。文件管理噩梦,同步更新和维护成本激增,容易出错!
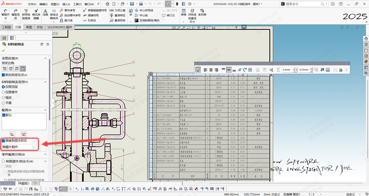
很多用户希望,类似上述的方法二那样使用多配置来实现这一需求,毕竟是与三维模型是实时关联的,但同时要能够保证性能流畅!或者能让 BOM 链接到“显示状态”最好了,显示状态很轻盈,且可以实现隐藏和显示零部件的切换功能。
现在在 SOLIDWORKS 2025 SP 1 版本中已经解决了这一难题,允许我们将 BOM 与三维模型的“显示状态”进行关联。那么此时就可以做到既可以在工程制图的图形表达中显示这些外购件/参考件/标准件,又可以让 BOM 仅统计我们需要的自制件。

轻量级解决:
无需创建额外配置或文件,只需在所需三维模型中设置一个专门的显示状态(仅显示需要在 BOM 中统计的零部件,或不显示特定类别的零部件,如外购件)。
精准控制:
在BOM属性中,选择链接到“显示状态”,根据需求选择提前设定好的显示状态即可,这样,BOM 仅统计在当前显示状态下可见的零部件。
视图清晰 & BOM 准确:
工程制图中可以按需完整显示装配关系(包含外购件),而 BOM 只统计我们希望统计的部分(如仅自制件),完美实现“显示但不统计”的行业常见需求。
高效维护:
显示状态易于修改和管理,不影响装配体主体结构和配置。“显示的归显示,统计的归统计”,轻点一下,鱼与熊掌兼得!
SENSNOW SOFTWARE
PRINCIPAL INVESTIGATOR / Joe.
· 原创内容未经授权严禁转载
· 禁止任何形式的洗稿、抄袭
400 636 8628